Lazio | Roma | Infernetto
Via Villabassa, 49
Appartamento in Affitto a Roma
€ 700/mese
€ 700/mese
Locali 2
m² 43
Bagni 1
Piano 2°
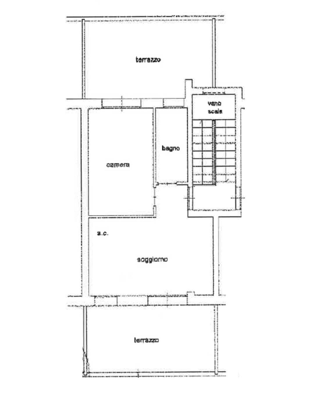
Infernetto, moderno bilocale arredato, pronto per essere abitato.
Via Villabassa, in contesto residenziale e signorile, proponiamo in affitto un luminoso e silenzioso appartamento, posto al secondo piano di uno stabile in tinta dei primi anni 2000.
Soggiorno con cucina a vista, camera da letto, bagno con finestra, due terrazzi vivibili con vista aperta e comodo posto auto.
Completamente arredato. Riscaldamento autonomo.
TIPOLOGIA DI CONTRATTO: TRANSITORIO 18 MESI
Solo Referenziati. Disponibile da subito.
SPECIFICHE
RIFERIMENTO IMMOBILE
MTI-994
CONTRATTO
Affitto
TIPOLOGIA
Appartamento
PIANO
2° Piano
SUPERFICIE
43 m²
LOCALI
2 Locali, 1 Bagno
CAMERA
1
CUCINA
A vista
TERRAZZO
Presente
TOTALE PIANI EDIFICIO
3
POSTO AUTO
Scoperto
DISPONIBILITA'
Libero
COSTI
PREZZO
€ 700/mese
SPESE CONDOMINIALI
€ 40/mese
EFFICIENZA ENERGETICA
ANNO DI COSTRUZIONE
2006
STATO
Ottimo
RISCALDAMENTO
Autonomo
CLASSE ENERGETICA
F 161 kWh/㎡ anno


