Lazio | Roma | Lido Di Ostia
Via Sartena, 18
Appartamento in Vendita a Roma
€ 198.000
€ 198.000
Locali 3
m² 98
Bagni 2
Piano terra
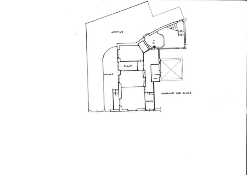
Nella zona residenziale di Ostia, precisamente in Via Sartena, proponiamo in vendita un appartamento al piano terra inserito in una palazzina di quattro piani.
L'ingresso introduce a un corridoio con disimpegno che distribuisce in modo ordinato e funzionale tutti gli ambienti della casa. L'immobile è composto da ampio salone, cucina , due camere da letto, doppi servizi, studio e un ripostiglio utilizzabile come lavanderia.
La camera matrimoniale è arricchita dalla presenza di un pratico ripostiglio a muro, ideale come spazio guardaroba.
Completa la proprietà un giardino privato, perfetto per momenti di relax all'aperto o per chi desidera uno spazio esterno da vivere quotidianamente.
L'immobile gode di una doppia esposizione sud-ovest e nord- ovest che assicura una buona luminosità durante l'arco della giornata.
La zona di Ostia è ben collegata, con la presenza di negozi , scuole e mezzi pubblici , oltre alla vicinanza al mare.
Soluzione ideale per chi è alla ricerca di comfort , funzionalità e di uno spazio esterno privato.
SPECIFICHE
RIFERIMENTO IMMOBILE
MTI-963
CONTRATTO
Vendita
TIPOLOGIA
Appartamento
PIANO
Piano terra
SUPERFICIE
98 m²
LOCALI
3 Locali, 2 Bagni
CAMERE
2
CUCINA
A vista
TOTALE PIANI EDIFICIO
4
DISPONIBILITA'
Libero
COSTI
PREZZO
€ 198.000
SPESE CONDOMINIALI
€ 80/mese
EFFICIENZA ENERGETICA
ANNO DI COSTRUZIONE
1970
STATO
Da ristrutturare
RISCALDAMENTO
Autonomo
CLASSE ENERGETICA
G 210 kWh/㎡ anno


