Lazio | Roma | Bologna

Via Rodolfo Lanciani, 10

Appartamento in Vendita a Roma

€ 400.000

€ 400.000

Locali 3

m² 60

Bagni 1

Piano 2°

Vai agli immobili

TRILOCALE IN FASE DI REALIZZAZIONE – CONSEGNA MAGGIO 2026

Nomentano – Piazza Bologna, Via Lanciani. All'interno di un elegante palazzo degli anni '40 proponiamo in vendita un trilocale moderno e ben rifinito, attualmente in fase di completa riqualificazione.

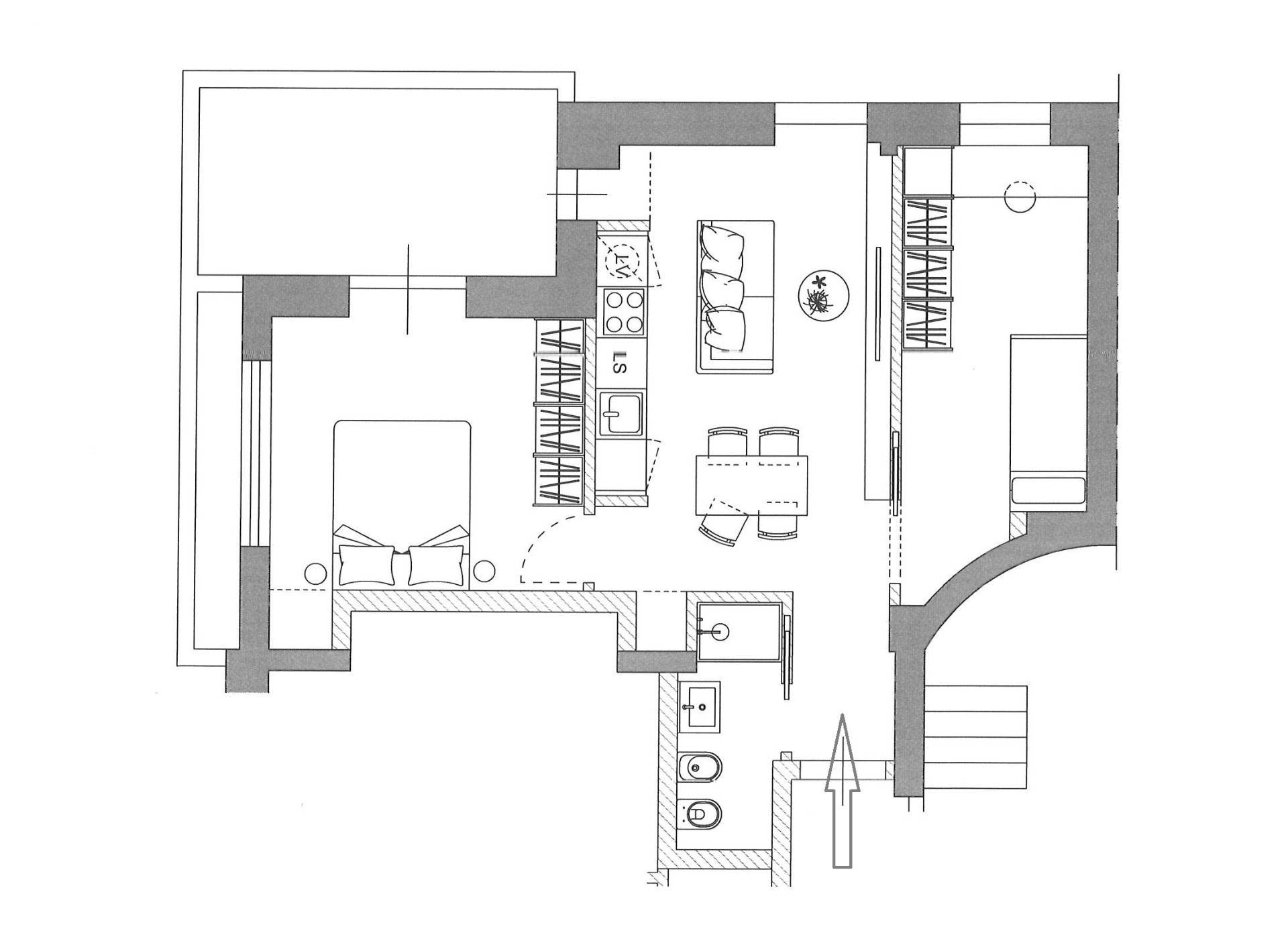
L'unità immobiliare posta al secondo piano si compone di una luminosa zona living, una camera matrimoniale, una cameretta, un bagno e un piacevole terrazzino.

L'immobile verrà consegnato totalmente ristrutturato, con materiali di alta qualità, impianti nuovi e tutte le certificazioni a norma.

Consegna: La consegna delle chiavi Maggio 2026.

Bagno Arredato: Il bagno verrà consegnato già completo di arredi, lasciandoti solo il piacere di completare gli altri ambienti.

Mutuo : Tempistiche perfette, puoi consultare attraverso il nostro consulente del credito, il Mutuo più adatto alle tue esigenze.

Un progetto curato nei dettagli per offrire efficienza, funzionalità e stile, in linea con gli standard più moderni.
Contattaci subito per ricevere il capitolato e fissare un appuntamento!

SPECIFICHE

RIFERIMENTO IMMOBILE

MTI-936

CONTRATTO

Vendita

TIPOLOGIA

Appartamento

PIANO

2° Piano

SUPERFICIE

60 m²

LOCALI

3 Locali, 1 Bagno

CAMERE

2

CUCINA

A vista

TERRAZZO

Presente

BALCONE

Presente

TOTALE PIANI EDIFICIO

5

ASCENSORE

Presente

DISPONIBILITA'

Libero

COSTI

PREZZO

€ 400.000

SPESE CONDOMINIALI

€ 60/mese

EFFICIENZA ENERGETICA

ANNO DI COSTRUZIONE

1940

STATO

Ristrutturato

RISCALDAMENTO

Centralizzato con contabilizzatore di calore

CLASSE ENERGETICA

F 117 kWh/㎡ anno

PLANIMETRIA

POSIZIONE DELL'IMMOBILE

Gianluca Mari

CEO & Founder MARI

Questo sito è protetto da reCAPTCHA. Vengono applicati Privacy Policy e Termini e Condizioni di Google.