Lazio | Roma | Bologna
via Rodolfo Lanciani, 10
Appartamento in Vendita a Roma
€ 330.000
€ 330.000
Locali 2
m² 46
Bagni 1
Piano 2°
BILOCALE IN FASE DI REALIZZAZIONE CONSEGNA MAGGIO 2026
Nomentano Piazza Bologna, Via Lanciani. All'interno di un elegante palazzo degli anni '40 proponiamo in vendita un bilocale moderno e ben rifinito, attualmente in fase di completa riqualificazione.
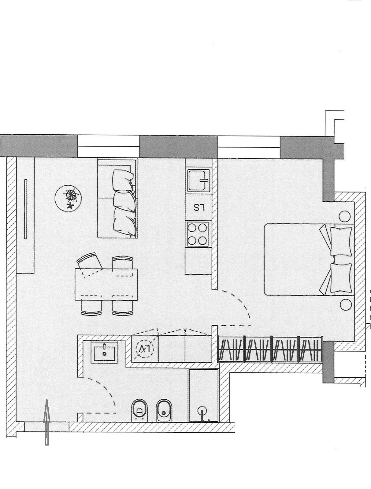
L'unità immobiliare posta al secondo piano si compone di un accogliente zona living, camera matrimoniale e bagno.
L'immobile verrà consegnato totalmente ristrutturato, con materiali di alta qualità impianti nuovi e tutte le certificazioni a norma.
Vantaggi Esclusivi:
Personalizzazione (Scadenza 23/12/2025): Acquistando entro questa data, avrai la straordinaria opportunità di scegliere e personalizzare i materiali di rivestimento, pavimentazioni e arredi del bagno, rendendo la casa unica.
Consegna: La consegna delle chiavi Maggio 2026.
Bagno Arredato: Il bagno verrà consegnato già completo di arredi, lasciandoti solo il piacere di completare gli altri ambienti.
Modalità di Acquisto:
Offerta a partire da € 330.000,00 Compralo subito a € 340.000,00
Mutuo: Tempistiche perfette, puoi consultare attraverso il nostro consulente del credito, il mutuo più adatto alle tue esigenze.
Un progetto curato nei dettagli per offrire efficienza, funzionalità e stile, in linea con gli standard più moderni.
Contattaci subito per ricevere il capitolato e fissare un appuntamento!
SPECIFICHE
RIFERIMENTO IMMOBILE
MTI-935
CONTRATTO
Vendita
TIPOLOGIA
Appartamento
PIANO
2° Piano
SUPERFICIE
46 m²
LOCALI
2 Locali, 1 Bagno
CAMERA
1
CUCINA
A vista
TOTALE PIANI EDIFICIO
5
ASCENSORE
Presente
DISPONIBILITA'
Libero
COSTI
PREZZO
€ 330.000
SPESE CONDOMINIALI
€ 40/mese
EFFICIENZA ENERGETICA
ANNO DI COSTRUZIONE
1940
STATO
Ristrutturato
RISCALDAMENTO
Centralizzato con contabilizzatore di calore
CLIMATIZZATORE
Autonomo, Freddo/Caldo
CLASSE ENERGETICA
F 117 kWh/㎡ anno




