Lazio | Roma | Parioli
Via Nicolò Paganini, 1
Luxury | Appartamento in Vendita a Roma
€ 1.400.000
€ 1.400.000
Locali 9
m² 200
Bagni 2
Piano 1°
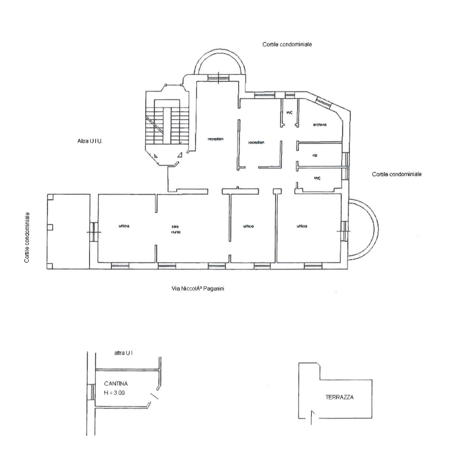
Nel cuore del quartiere Parioli, all'interno di un elegante palazzo d'epoca, proponiamo in vendita un appartamento posto al primo piano di quattro.
L'immobile, di ampia metratura, presenta una distribuzione interna tipica di un'abitazione: l'ingresso conduce a una grande zona di rappresentanza, seguita da quattro ampi ambienti, ulteriori spazi accessori, due servizi e ripostiglio.
La proprietà è arricchita da un terrazzo vivibile e un balcone, che garantiscono ottima luminosità.
Completano la soluzione una cantina e un box auto.
Ideale sia come residenza di prestigio da personalizzare, sia come opportunità di investimento in una delle zone più esclusive della città.
La zona:
I Parioli rappresentano una delle aree più esclusive e richieste di Roma, rinomata per la sua eleganza, la tranquillità e la qualità dei servizi. Strade alberate, parchi curati, scuole prestigiose, negozi di alta gamma, ristoranti e bar raffinati rendono la zona ideale per chi cerca comfort, stile e una posizione strategica con ottimi collegamenti verso il centro città.
SPECIFICHE
RIFERIMENTO IMMOBILE
MTI-964
CONTRATTO
Vendita
TIPOLOGIA
Appartamento
PIANO
1° Piano
SUPERFICIE
200 m²
LOCALI
9 Locali, 2 Bagni
TERRAZZO
Presente
TOTALE PIANI EDIFICIO
4
ASCENSORE
Presente
DISPONIBILITA'
Libero
COSTI
PREZZO
€ 1.400.000
SPESE CONDOMINIALI
€ 420/mese
EFFICIENZA ENERGETICA
ANNO DI COSTRUZIONE
1930
STATO
Buono
RISCALDAMENTO
Autonomo
CLASSE ENERGETICA
C 125 kWh/㎡ anno


