Lazio | Roma | Marino | Frattocchie
Via Mazzamagna, 98
Porzione di villa in Vendita a Marino
€ 350.000
€ 350.000
Locali 5
m² 143
Bagni 3
Multipiano
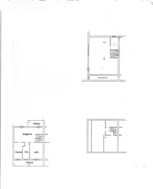
Eleganza, spazio e comfort a Marino Frattocchie (Via Mazzamagna)
In contesto residenziale tranquillo e riservato, proponiamo villa trifamiliare angolare di recente costruzione (2014), caratterizzata da ampi spazi interni ed esterni e da finiture signorili.
La proprietà è circondata da un giardino privato di circa 650 mq, ideale per momenti di relax, convivialità all'aperto e per chi desidera vivere la casa anche all'esterno.
L'abitazione si sviluppa su più livelli ed è composta da:
- Ampio salone luminoso
- Cucina abitabile
- Quattro camere da letto
- Tre bagni
- Sala hobby, perfetta come area relax, studio o spazio multifunzionale
Una villa pronta da vivere, dove spazio e stile si incontrano.
Euro 350.000
SPECIFICHE
RIFERIMENTO IMMOBILE
MTI-957
CONTRATTO
Vendita
TIPOLOGIA
Porzione di villa
PIANO
Multipiano
SUPERFICIE
143 m²
LOCALI
5 Locali, 3 Bagni
CAMERE
4
CUCINA
Abitabile
TOTALE PIANI EDIFICIO
3
DISPONIBILITA'
Libero
COSTI
PREZZO
€ 350.000
SPESE CONDOMINIALI
Assenti
EFFICIENZA ENERGETICA
ANNO DI COSTRUZIONE
2014
STATO
Buono
RISCALDAMENTO
Autonomo
CLIMATIZZATORE
Autonomo, Freddo/Caldo
CLASSE ENERGETICA
F 247 kWh/㎡ anno


