Lazio | Roma | Collatino
Via Giuseppe Di Vittorio, 10
Appartamento in Vendita a Roma
€ 300.000
€ 300.000
Locali 4
m² 120
Bagni 2
Piano 2°
Ampia metratura da personalizzare Quartiere Collatino
Nel cuore del quartiere Collatino, in contesto residenziale tranquillo e ben collegato, proponiamo in vendita appartamento di circa 120 mq posto al secondo piano di uno stabile ben mantenuto.
L'immobile, da ristrutturare, rappresenta una soluzione ideale per chi desidera ridisegnare gli spazi secondo le proprie esigenze, grazie alla pianta regolare e alla facile redistribuzione degli ambienti.
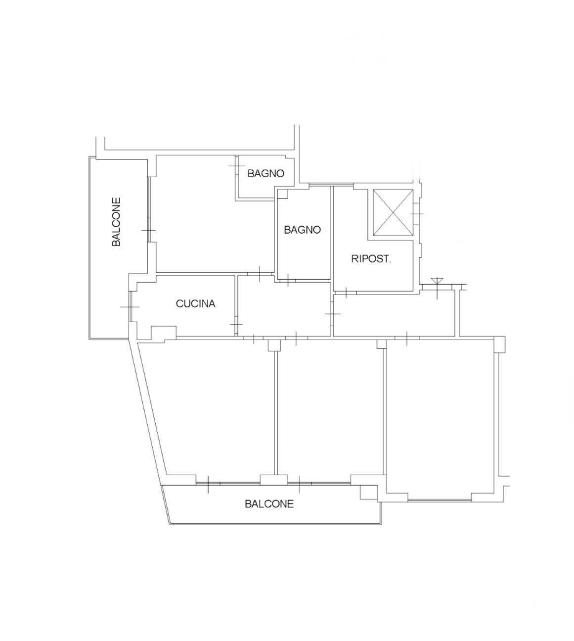
L'appartamento è attualmente composto da: Ampio soggiorno, tre camere da letto, cucina abitabile, due bagni, di cui uno nella camera, grande ripostiglio, due balconi che garantiscono luminosità e sfogo esterno
La generosa metratura e la disposizione degli ambienti permettono molteplici soluzioni di ristrutturazione, rendendolo perfetto sia come abitazione principale per famiglie sia come investimento immobiliare.
Zona servita da negozi, scuole, trasporti e principali collegamenti con il centro città.
Un'ottima opportunità per creare la tua casa su misura.
SPECIFICHE
RIFERIMENTO IMMOBILE
MTI-1006
CONTRATTO
Vendita
TIPOLOGIA
Appartamento
PIANO
2° Piano
SUPERFICIE
120 m²
LOCALI
4 Locali, 2 Bagni
CAMERE
3
CUCINA
Presente
BALCONE
Presente, 15 m²
TOTALE PIANI EDIFICIO
5
ASCENSORE
Presente
DISPONIBILITA'
Libero
COSTI
PREZZO
€ 300.000
SPESE CONDOMINIALI
€ 104/mese
EFFICIENZA ENERGETICA
ANNO DI COSTRUZIONE
1964
STATO
Da ristrutturare
RISCALDAMENTO
Autonomo
CLASSE ENERGETICA
F 168 kWh/㎡ anno


