Lazio | Roma | Collatino
Via Georges Sorel, 7
Appartamento in Vendita a Roma
€ 339.000
€ 339.000
Locali 3
m² 120
Bagni 2
Piano 3°
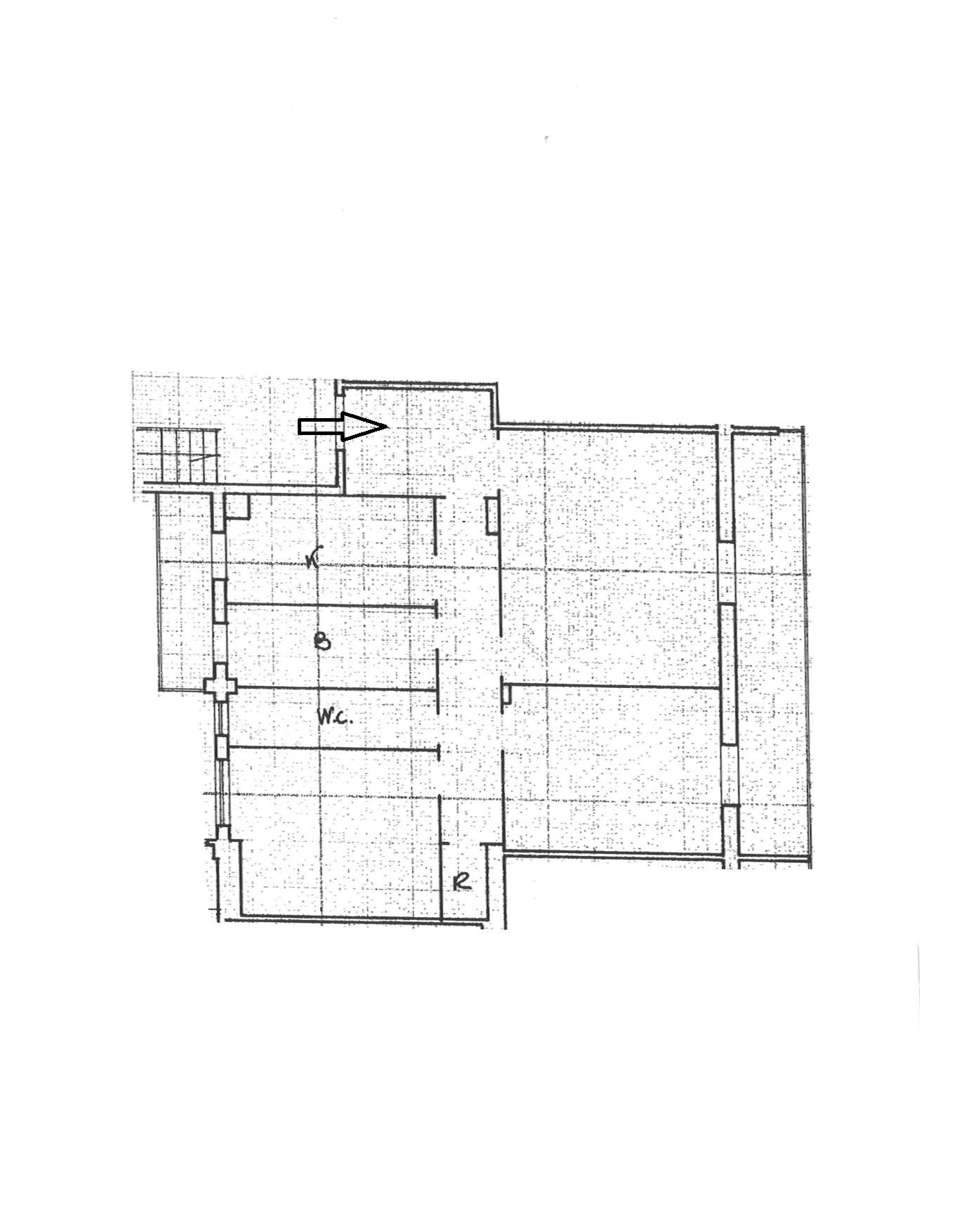
AMPIO TRILOCALE DUE BALCONI - COLLATINO
Proponiamo in vendita a Roma, nella zona di Collatino, un appartamento spazioso e luminoso, perfetto per una famiglia o una coppia in cerca di una casa confortevole e ben ubicata.
L'immobile si trova in uno stabile costruito nel 1970 circa, ma nel tempo è stato mantenuto in buone condizioni ed è libero subito, pronto per essere abitato. Con una superficie totale di 120 metri quadrati, l'appartamento è composto da tre locali, ovvero: un doppio soggiorno con l'uscita su un grande balcone, due camere da letto, una cucina abitabile anch'essa con l'uscita su un altro balcone, e due bagni.
L'appartamento è dotato di un sistema di riscaldamento autonomo, alimentato a metano, che garantisce elevato comfort abitativo.
Inoltre, è presente una cantina, utile per riporre oggetti e attrezzature.
L'appartamento si trova al terzo piano di un edificio di cinque, garantendo una buona luminosità e una piacevole vista sulla zona circostante.
La posizione è comoda e ben servita dai mezzi pubblici, con negozi, scuole e servizi di ogni genere a pochi passi di distanza.
Inoltre, la vicinanza con il centro storico di Roma lo rende un'ottima scelta per chi desidera vivere in una zona tranquilla, ma allo stesso tempo vicina alle principali attrazioni della città.
SPECIFICHE
RIFERIMENTO IMMOBILE
MTI-902
CONTRATTO
Vendita
TIPOLOGIA
Appartamento
PIANO
3° Piano
SUPERFICIE
120 m²
LOCALI
3 Locali, 2 Bagni
CAMERE
2
CUCINA
Abitabile
BALCONE
Presente
TOTALE PIANI EDIFICIO
5
ASCENSORE
Presente
DISPONIBILITA'
Libero
COSTI
PREZZO
€ 339.000
SPESE CONDOMINIALI
€ 85/mese
EFFICIENZA ENERGETICA
ANNO DI COSTRUZIONE
1970
STATO
Buono
RISCALDAMENTO
Autonomo
CLASSE ENERGETICA
G 28 kWh/㎡ anno


