Lazio | Roma | Prati
Via Ennio Quirino Visconti, 60
Appartamento in Vendita a Roma
€ 385.000
€ 385.000
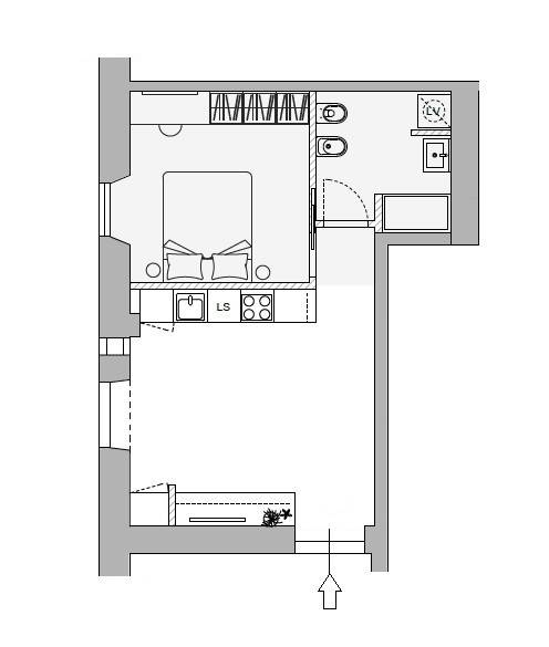
Locali 2
m² 50
Bagni 1
Piano 1°
VIVERE IL NUOVO NEL CUORE DEL QUARTIERE PRATI, A POCHI PASSI DA VIA COLA DI RIENZO E PIAZZA CAVOUR.
BILOCALE IN PRONTA CONSEGNA, PRONTO PER ESSERE ABITATO.
Prati, Via Ennio Quirino Visconti tra Via Cicerone e Via Lucrezio Caro. Nuovo, elegante e moderno appartamento posto al primo piano di un bel palazzo dei primi del '900 con ascensore.
L'immobile è stato completamente ristrutturato e completato con materiali di prima scelta.
SPECIFICHE
RIFERIMENTO IMMOBILE
MTI-887
CONTRATTO
Vendita
TIPOLOGIA
Appartamento
PIANO
1° Piano
SUPERFICIE
50 m²
LOCALI
2 Locali, 1 Bagno
CAMERA
1
CUCINA
A vista
TOTALE PIANI EDIFICIO
5
ASCENSORE
Presente
DISPONIBILITA'
Libero
COSTI
PREZZO
€ 385.000
SPESE CONDOMINIALI
€ 60/mese
EFFICIENZA ENERGETICA
ANNO DI COSTRUZIONE
1920
STATO
Ristrutturato
RISCALDAMENTO
Autonomo
CLIMATIZZATORE
Autonomo, Freddo/Caldo
CLASSE ENERGETICA
F 20 kWh/㎡ anno


