Lazio | Roma | Mezzocammino
Via Edgardo Negri, 107
Luxury | Villa in Vendita a Roma
€ 1.030.000
€ 1.030.000
Locali 15
m² 427
Bagni 5
Piano terra
EUR TRE PINI ESCLUSIVA VILLA RISTRUTTURATA
Torrino Mezzocammino, nel cuore dell'esclusivo quartiere residenziale "Tre Pini" e precisamente in Via Edgardo Negri, Villa di ampia metratura su quattro livelli con gradevole spazio esterno.
L'immobile è stato recentemente e finemente ristrutturato con materiali di pregio e ottime rifiniture, in evidenza il Parquet in Doussiè, i pannelli fotovoltaici, gli infissi con vetrocamera e la climatizzazione.
Al piano terra, un salone doppio dalle generose dimensioni dotato di camino, la cucina abitabile, il tinello anch'esso con camino, un bagno di servizio e lo spazio esterno con porticato, giardino e terrazzo sul retro.
La scala in massello ci porta al primo piano, dove troviamo tre accoglienti camere, due bagni con finestra e un balcone.
Salendo al secondo piano una graziosa mansarda composta da camera, studio, bagno e balcone.
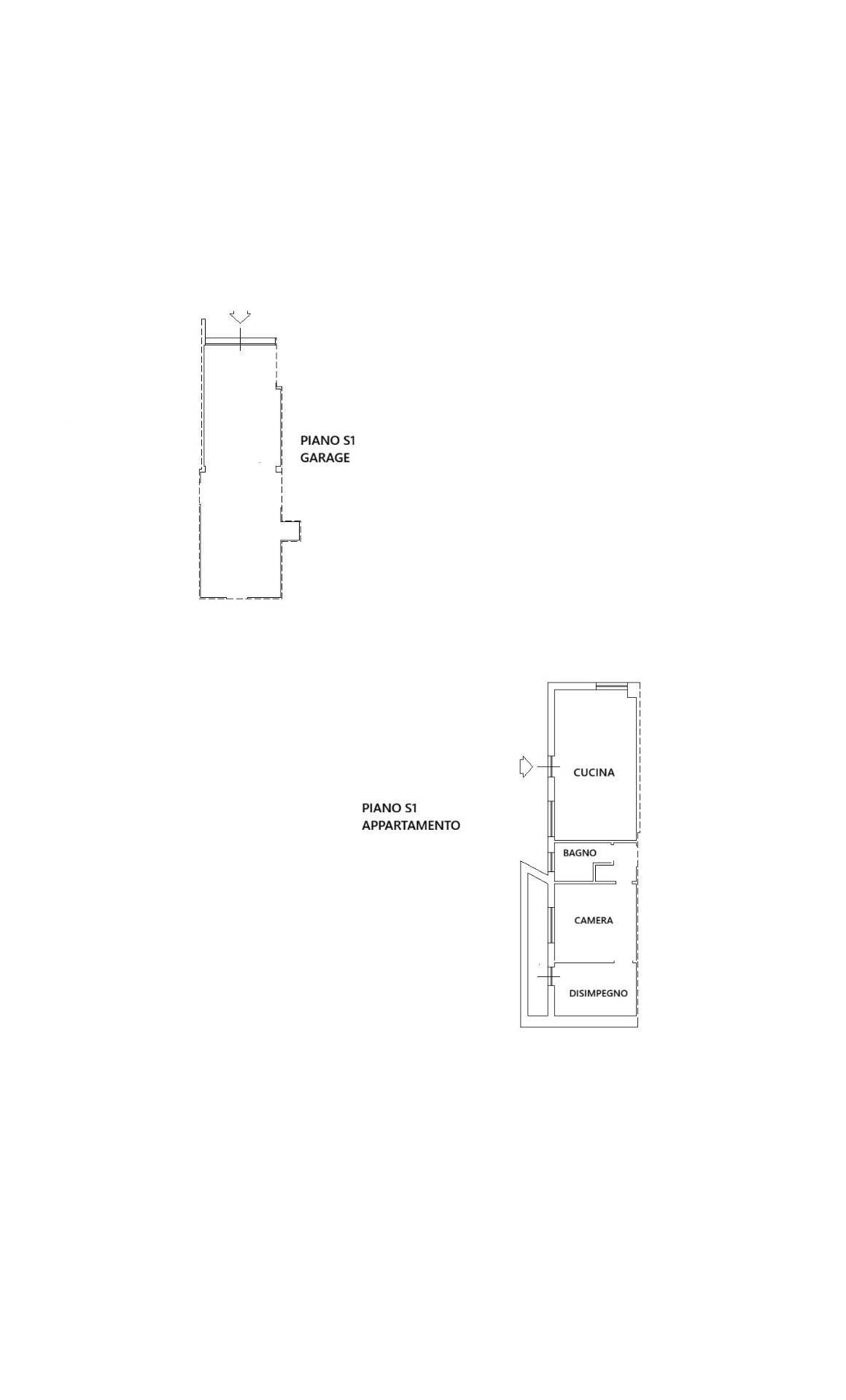
Al piano seminterrato si accede sia dalla scala interna che da una rampa, alla fine della quale è possibile parcheggiare 4 auto. All'interno una taverna, la cantina e un delizioso appartamentino con soggiorno, angolo cottura e bagno.
La soluzione ideale per chi ricerca una casa lussuosa, ma allo stesso tempo di raffinata sobrietà, con spazi di grande respiro in un contesto signorile ed esclusivo.
SPECIFICHE
RIFERIMENTO IMMOBILE
MTI-901
CONTRATTO
Vendita
TIPOLOGIA
Villa
PIANO
Piano terra
SUPERFICIE
427 m²
LOCALI
15 Locali, 5 Bagni
CAMERE
5
CUCINA
Abitabile
GIARDINO
Privato
TERRAZZO
Presente
BALCONE
Presente
TOTALE PIANI EDIFICIO
4
POSTO AUTO
Scoperto
DISPONIBILITA'
Libero
COSTI
PREZZO
€ 1.030.000
SPESE CONDOMINIALI
Assenti
EFFICIENZA ENERGETICA
ANNO DI COSTRUZIONE
1970
STATO
Ristrutturato
RISCALDAMENTO
Autonomo
CLIMATIZZATORE
Autonomo, Freddo/Caldo
CLASSE ENERGETICA
C 101 kWh/㎡ anno



