Lazio | Roma | Aurelio
Via Diomede Marvasi, 7
Nuova Costruzione | Villa o villino in Vendita a Roma
€ 450.000
€ 450.000
Locali 5
m² 113
Bagni 2
Piano terra
AURELIA ERGIFE VILLINO DI NUOVA COSTRUZIONE IN CLASSE ENERGETICA A4 (nZEB). CONSEGNA PRIMI DI MAGGIO. Sulla Via Aurelia e precisamente in Via Diomede Marvasi, in ottima posizione, adiacente il Centro Commerciale Panorama e a pochi minuti da Villa Pamphili, da San Pietro, dal GRA e dalla Metro A Cornelia.
COME ACQUISTARLO:
OFFERTE A PARTIRE DA EURO 450.000
PREZZO DI VENDITA EURO 470.000
No spese condominiali.
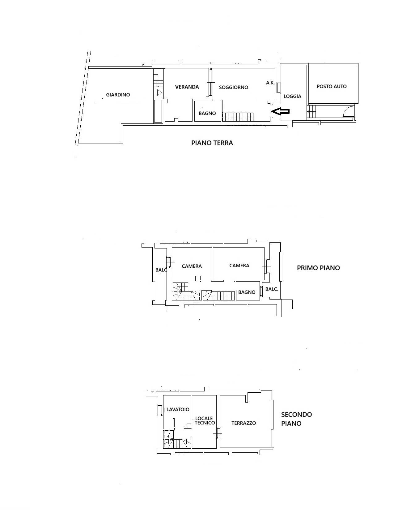
L'unità abitativa si sviluppa tutta fuori terra su tre livelli ed ha un comodo ed ampio posto auto scoperto.
Piano terra: soggiorno pranzo con angolo cottura, bagno, ampia veranda e giardino
Piano primo: due camere, bagno e due balconi
Piano secondo: mansarda con lavanderia e ampio terrazzo in parte coperto.
Il villino è stato edificato secondo i più moderni criteri estetici e pratici, unisce ad un design moderno, una elevata efficienza energetica in classe A4 (nZEB), impianto fotovoltaico in grado di soddisfare gran parte del fabbisogno energetico, riscaldamento a pavimento, climatizzatore caldo freddo con produzione di acqua calda sanitaria con pompa di calore, infissi in pvc di ultima generazione con tapparelle motorizzate, impianto di domotica, pavimenti in gres porcellanato naturale di prima scelta, bagni completamente arredati, videocitofono, portoncino blindato.
Il nostro Mediatore del Credito è a vostra disposizione per guidarvi nella scelta del Mutuo più adatto alle vostre esigenze, scegliendo tra le migliori offerte dei Mutui Green, che offrono tassi particolarmente agevolati per l'acquisto di immobili in Classe Energetica "A".
SPECIFICHE
RIFERIMENTO IMMOBILE
MTI-1011
CONTRATTO
Vendita
TIPOLOGIA
Villa o villino
PIANO
Piano terra
SUPERFICIE
113 m²
LOCALI
5 Locali, 2 Bagni
CAMERE
3
CUCINA
Angolo cottura
GIARDINO
Privato
TERRAZZO
Presente
BALCONE
Presente
TOTALE PIANI EDIFICIO
3
POSTO AUTO
Scoperto
DISPONIBILITA'
Libero
COSTI
PREZZO
€ 450.000
SPESE CONDOMINIALI
€ 1/mese
EFFICIENZA ENERGETICA
ANNO DI COSTRUZIONE
2026
RISCALDAMENTO
Autonomo
CLIMATIZZATORE
Autonomo, Freddo/Caldo
CLASSE ENERGETICA
A4 6 kWh/㎡ anno


