Lazio | Roma | Marino | Castelluccia
Via delle Molette, 29/B
Appartamento in Vendita a Marino
€ 185.000
€ 185.000
Locali 3
m² 65
Bagni 1
Piano terra
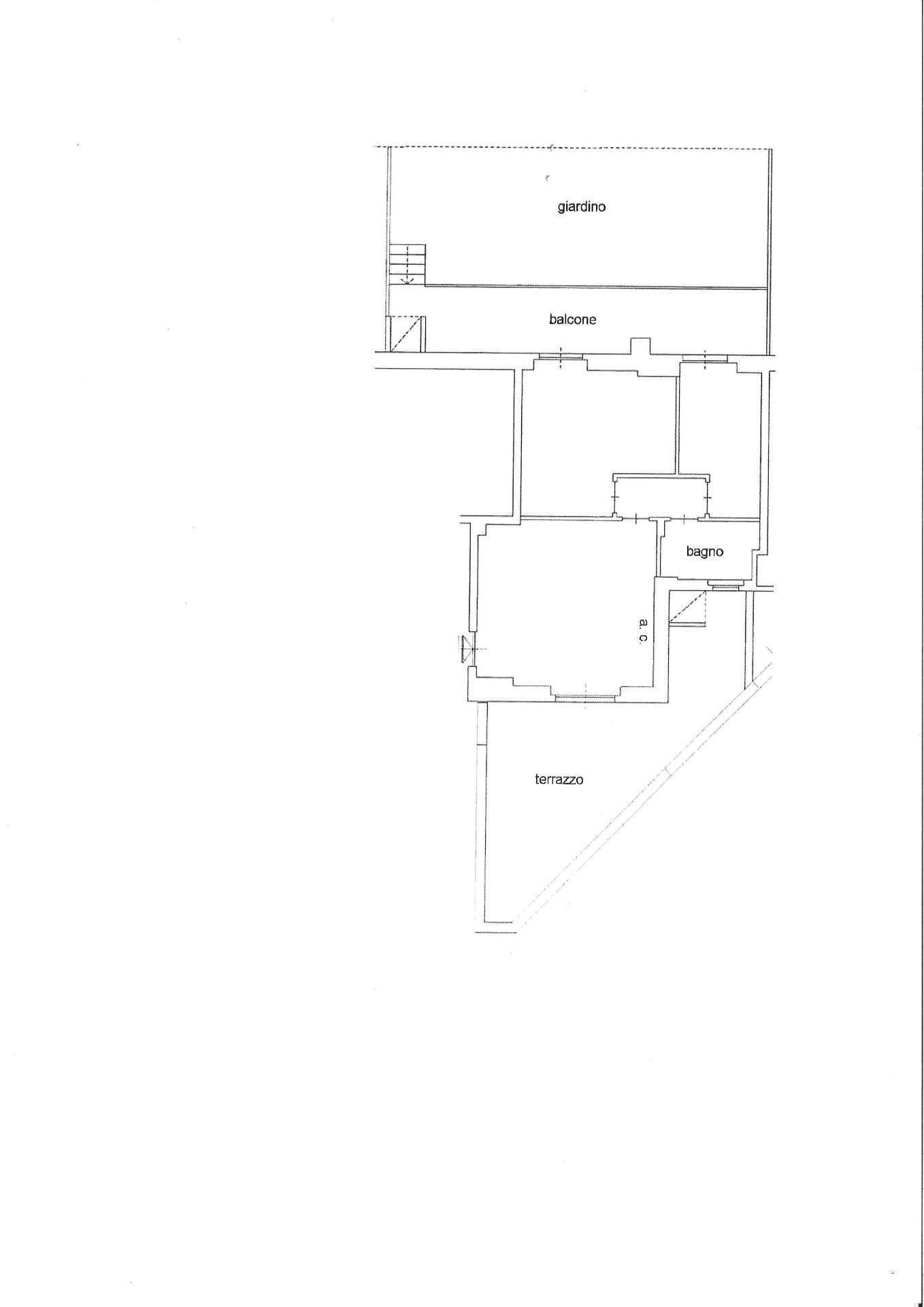
Occasione Imperdibile a Castelluccia di Marino.
In un contesto tranquillo residenziale e ben collegato, proponiamo in vendita una graziosa soluzione al piano terra, con ingresso semi-indipendente.
L'appartamento, luminoso e ben esposto, si compone di:
ampio salone con angolo cottura, disimpegno, due camere, bagno, doppio giardino privato in parte pavimentato ideale per momenti di relax o per chi ama vivere gli spazi esterni.
E' compreso un Box auto e ampia possibilità di parcheggio esterno.
Una casa perfetta per chi desidera tranquillità senza rinunciare alla comodità dei servizi e delle principali vie di comunicazione Appia e Nettunense.
SPECIFICHE
RIFERIMENTO IMMOBILE
MTI-920
CONTRATTO
Vendita
TIPOLOGIA
Appartamento
PIANO
Piano terra
SUPERFICIE
65 m²
LOCALI
3 Locali, 1 Bagno
CAMERE
2
CUCINA
A vista
GIARDINO
Privato
TERRAZZO
Presente
BALCONE
Presente
TOTALE PIANI EDIFICIO
2
BOX AUTO
Singolo
DISPONIBILITA'
Libero
COSTI
PREZZO
€ 185.000
SPESE CONDOMINIALI
€ 40/mese
EFFICIENZA ENERGETICA
ANNO DI COSTRUZIONE
2009
STATO
Buono
RISCALDAMENTO
Autonomo
CLASSE ENERGETICA
D 152 kWh/㎡ anno


