Lazio | Roma | Formello
Via delle Ghiande, 10
Appartamento in Vendita a Formello
€ 290.000
€ 290.000
Locali 7
m² 220
Bagni 3
Piano 2°
FORMELLO SPLENDIDO APPARTAMENTO BILIVELLO NEL VERDE
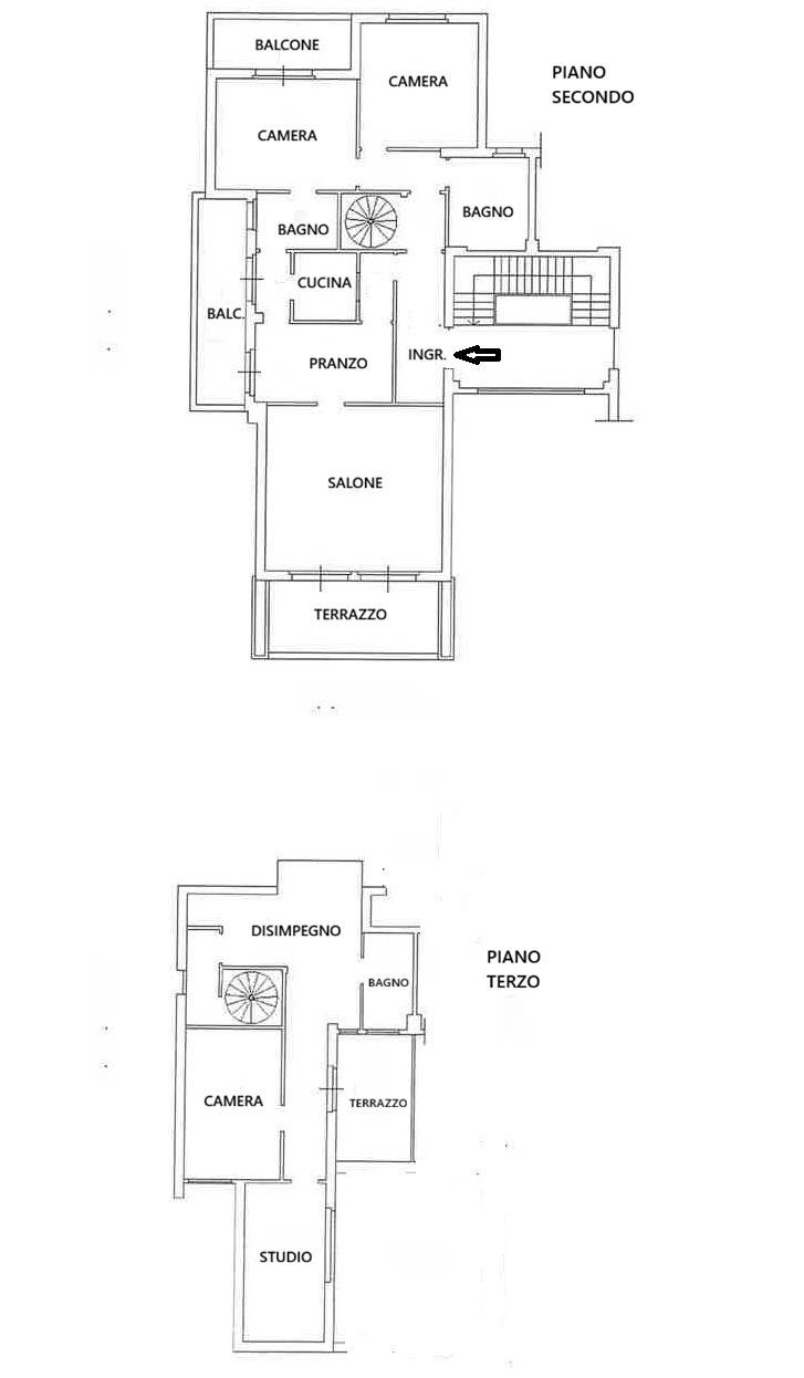
FORMELLO - Via delle Ghiande - In zona residenziale, l'appartamento è collocato al secondo e terzo piano di una palazzina di sei unità, in posizione panoramica ed immersa nel verde.
Lo stabile è stato oggetto di una ristrutturazione integrale. Grazie al superbonus sono stati realizzati il cappotto termico, nuove caldaie, infissi con doppio vetro e tapparelle motorizzate, nuovo tetto e nuovi terrazzi, portone blindato e pannelli solari per la produzione di acqua calda sanitaria.
Al secondo piano ci accoglie un salone doppio, la zona pranzo, cucina semi-abitabile, due camere, due bagni con finestra, un terrazzo con vista mozzafiato e due balconi.
Al terzo piano, mansardato ma ampiamente vivibile, troviamo un ampio disimpegno, due camere, un bagno con finestra ed un terrazzo.
Anche l'appartamento è stato recentemente ristrutturato e predisposto per essere diviso in tre unità.
Gli spazi condominiali consentono di parcheggiare più autoveicoli.
La soluzione è ideale per chi ama vivere fuori dal caos della città, nel silenzio e nella tranquillità.
SPECIFICHE
RIFERIMENTO IMMOBILE
MTI-1008
CONTRATTO
Vendita
TIPOLOGIA
Appartamento
PIANO
2° Piano
SUPERFICIE
220 m²
LOCALI
7 Locali, 3 Bagni
CAMERE
4
CUCINA
Semiabitabile
GIARDINO
Comune
TERRAZZO
Presente
BALCONE
Presente
TOTALE PIANI EDIFICIO
3
POSTO AUTO
Scoperto
DISPONIBILITA'
Libero
COSTI
PREZZO
€ 290.000
SPESE CONDOMINIALI
€ 130/mese
EFFICIENZA ENERGETICA
ANNO DI COSTRUZIONE
1977
STATO
Ristrutturato
RISCALDAMENTO
Autonomo
CLIMATIZZATORE
Autonomo, Freddo/Caldo
CLASSE ENERGETICA
F 219 kWh/㎡ anno


