Lazio | Roma | Riano
Via Codette, 2
Villa singola in Vendita a Riano
€ 455.000
€ 455.000
Locali 9
m² 330
Bagni 5
Multipiano
RIANO, LOCALITA' STAZZO, VIA CODETTE - VILLA UNIFAMILIARE, FASCINOSA ED ELEGANTE, CON TERRENO DI PROPRIETA' ESCLUSIVA DI 1.600 MQ
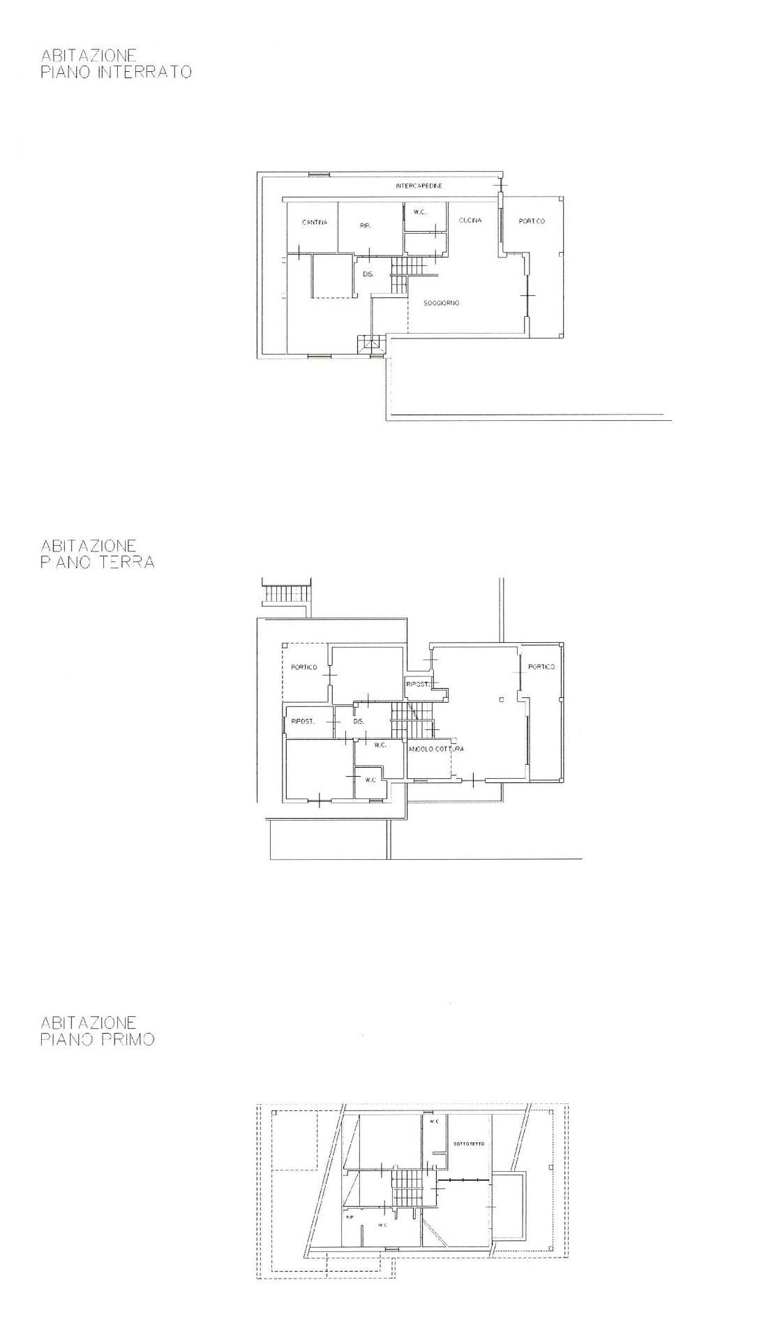
Sulla Via Flaminia, a breve distanza da Riano, in Località Stazzo, nella parte più panoramica di Via Codette, proponiamo in vendita una pregevole Villa unifamiliare con terreno di proprietà esclusiva di circa 1.600 mq. L'immobile, in buono stato manutentivo, è disposto su cinque livelli:
Livello Seminterrato: Ampio salone con camino, pavimentazione in cotto ed accesso diretto ad un portico e ad un giardino, camera, cucina, bagno, ripostiglio, cantina.
Livello Terra: Salone doppio con camino, pavimentazione in cotto e accesso ad un ampio balcone abitabile, angolo cottura attrezzato, secondo balcone, ripostiglio.
Livello Primo: camera con parquet ed accesso diretto ad un portico, camera con parquet e bagno en suite con accesso diretto ad un balcone, secondo bagno, ampio ripostiglio.
Livello Secondo: camera con parquet ed accesso diretto ad un balcone, bagno con cabina doccia e ripostiglio.
Livello Mansarda: camera con parquet, bagno con vasca e cabina doccia, ripostiglio
L'immobile fa parte di un Condominio di 6 ville unifamiliari. Parcheggio per auto nella proprietà, oltra a due posti auto in prossimità della Villa in area condominiale.
VILLA UNIFAMILIARE - LUMINOSA - ELEGANTE - TERRENO DI PROPRIETA' ESCLUSIVA
2 SALONI - 5 CAMERE - 5 BAGNI - 5 RIPOSTIGLI - 2 PORTICI - CANTINA
RISCALDAMENTO AUTONOMO - IMPIANTO DI ALLARME - IMPIANTO DI IRRIGAZIONE
SPECIFICHE
RIFERIMENTO IMMOBILE
MTI-764
CONTRATTO
Vendita
TIPOLOGIA
Villa singola
PIANO
Multipiano
SUPERFICIE
330 m²
LOCALI
9 Locali, 5 Bagni
CAMERE
5
CUCINA
Presente
GIARDINO
Privato
BALCONE
Presente
POSTO AUTO
Scoperto
DISPONIBILITA'
Libero
COSTI
PREZZO
€ 455.000
SPESE CONDOMINIALI
€ 20/mese
EFFICIENZA ENERGETICA
ANNO DI COSTRUZIONE
2002
STATO
Ottimo
RISCALDAMENTO
Autonomo
CLIMATIZZATORE
Autonomo, Freddo/Caldo
CLASSE ENERGETICA
E 91 kWh/㎡ anno


