Lazio | Roma | Trieste
Via Chiana, 35
Appartamento in Vendita a Roma
€ 470.000
€ 470.000
Locali 2
m² 74
Bagni 1
Piano 2°
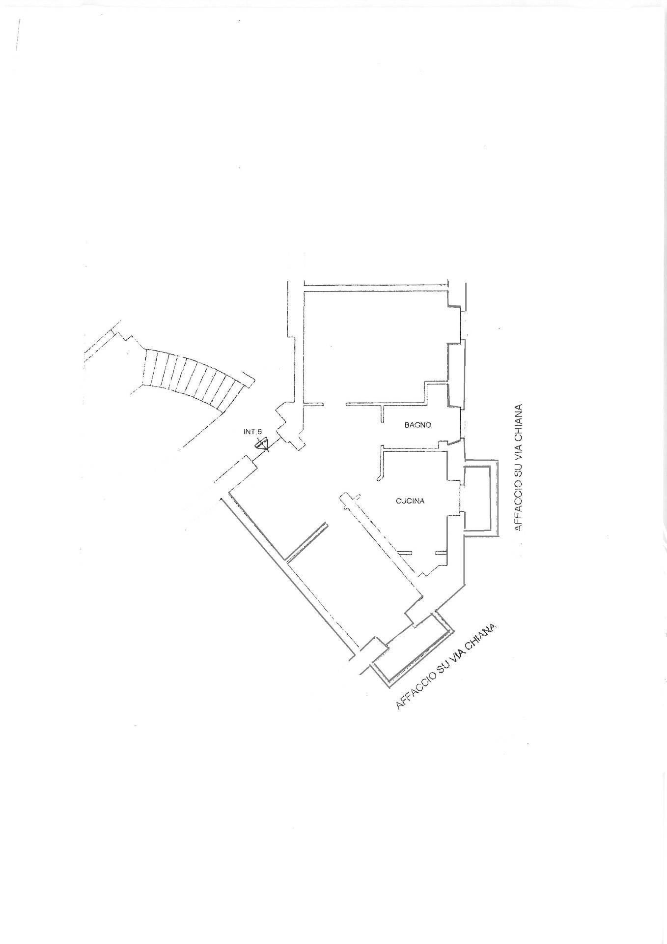
In una delle zone più esclusive del quartiere, precisamente in Via Chiana, proponiamo in vendita un luminoso appartamento di 74 mq, situato al secondo piano di uno stabile signorile dotato di servizio di portineria e ascensore.
L'immobile è composto da:
- ampio ingresso
- salone
- cucina abitabile con balcone
- camera da letto con balcone
- bagno con box doccia
Prezzo di richiesta: € 470.000,00
Consulente immobiliare: Leonardo Leo
Il quartiere Trieste, nato negli anni Venti del XX secolo (inizialmente chiamato Quartiere Savoia), è una zona residenziale elegante e raffinata della città, caratterizzata da palazzi e villini in stile Liberty, Barocchetto e d'avanguardia.
Questo quartiere è abitato da famiglie di fascia medio-alta, professionisti, e anche studenti universitari (vicinanza a LUISS e Sapienza).
Via Chiana è una delle vie centrali nel cuore del quartiere Trieste, immersa in un contesto che unisce charme storico, architettura raffinata, servizi di qualità e una vivace offerta culturale e gastronomica. È una zona ideale per chi cerca residenza elegante e tranquilla, pur restando ben collegato al centro di Roma. Viverci offre tutta la comodità di strutture pubbliche, università, verde urbano e locali autentici.
SPECIFICHE
RIFERIMENTO IMMOBILE
MTI-895
CONTRATTO
Vendita
TIPOLOGIA
Appartamento
PIANO
2° Piano
SUPERFICIE
74 m²
LOCALI
2 Locali, 1 Bagno
CAMERA
1
CUCINA
Abitabile
BALCONE
Presente
TOTALE PIANI EDIFICIO
6
ASCENSORE
Presente
DISPONIBILITA'
Libero
COSTI
PREZZO
€ 470.000
SPESE CONDOMINIALI
€ 150/mese
EFFICIENZA ENERGETICA
ANNO DI COSTRUZIONE
1917
STATO
Da ristrutturare
RISCALDAMENTO
Autonomo
CLASSE ENERGETICA
F 153 kWh/㎡ anno


