Lazio | Roma | Talenti
Via Carlo Lorenzini, 64
Appartamento in Vendita a Roma
€ 260.000
€ 260.000
Locali 2
m² 52
Bagni 1
Piano 4°
VIVERE IL NUOVO NEL QUARTIERE TALENTI.
BILOCALE 52 MQ IN CORSO DI REALIZZAZIONE. CONSEGNA META' APRILE.
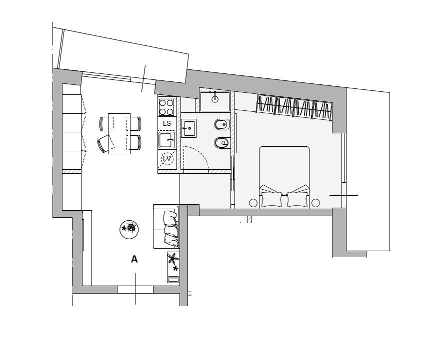
Talenti, in Via Carlo Lorenzini: Nuovo, elegante e moderno appartamento posto al quarto piano di un palazzo in tinta anni 60' con ascensore.
Accogliente soggiorno con cucina a vista, camera da letto, bagno e due balconi abitabili. Luminoso con affacci esterni.
COME ACQUISTARLO:
OFFERTE A PARTIRE DA 260.000€
PREZZO DI VENDITA 270.000€
L'immobile sarà completamente ristrutturato e completato con materiali di prima scelta.
Al termine della sua esperienza di acquisto, verrà attivato un portale dedicato per tutte le sue necessità di assistenza relative alla casa, avrà sempre un filo diretto con il costruttore per una customer experience d'eccellenza.
SPECIFICHE
RIFERIMENTO IMMOBILE
MTI-976
CONTRATTO
Vendita
TIPOLOGIA
Appartamento
PIANO
4° Piano
SUPERFICIE
52 m²
LOCALI
2 Locali, 1 Bagno
CAMERA
1
CUCINA
A vista
BALCONE
Presente
TOTALE PIANI EDIFICIO
5
ASCENSORE
Presente
DISPONIBILITA'
Libero
COSTI
PREZZO
€ 260.000
SPESE CONDOMINIALI
€ 60/mese
EFFICIENZA ENERGETICA
ANNO DI COSTRUZIONE
1960
STATO
Ristrutturato
RISCALDAMENTO
Centralizzato
CLIMATIZZATORE
Autonomo, Freddo/Caldo
CLASSE ENERGETICA
G 95 kWh/㎡ anno


