Lazio | Roma | Fleming
Via Vincenzo Tiberio, 38
Appartamento in Vendita a Roma
€ 295.000
€ 295.000
Locali 2
m² 75
Bagni 1
Piano terra
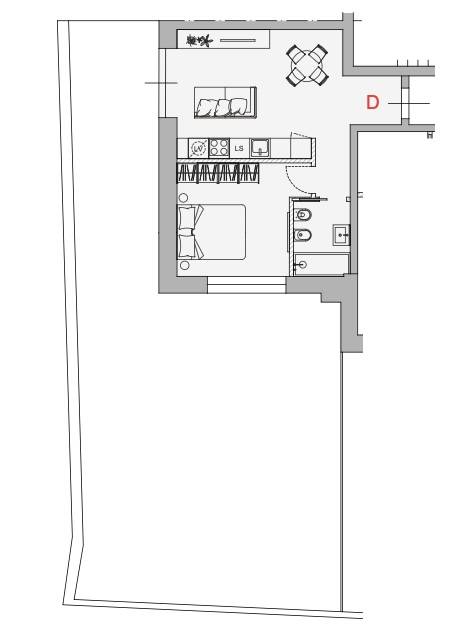
Vivere il nuovo nel cuore del Fleming.
Bilocale di 48 mq con terrazza di 90 mq Consegna prevista: Aprile 2026
Nel prestigioso quartiere Fleming, in Via Vincenzo Tiberio, proponiamo in vendita un elegante bilocale in corso di realizzazione, situato al piano terra di un signorile stabile anni '60 dotato di ascensore. L'appartamento, moderno e funzionale, è così composto:
Ingresso, soggiorno con cucina a vista e accesso diretto all'ampia terrazza privata di 90 mq, ideale per vivere all'aperto, camera da letto matrimoniale e bagno.
L'esposizione sud garantisce ottima luminosità durante tutto il pomeriggio.
MODALITA' D'ACQUISTO:
OFFERTA A PARTIRE DA € 295.000,00
COMPRALO SUBITO A € 310.000,00
Un'opportunità unica per chi desidera vivere in un contesto tranquillo e residenziale, senza rinunciare alla modernità e agli spazi esterni.
L'immobile sarà completamente ristrutturato e completato con materiali di prima scelta. Possibilità di poter personalizzare l'appartamento scegliendo i materiali tra le opzioni dei capitolati.Inoltre, in tutto il percorso di personalizzazione sarà seguito da un "experience designer" che saprà consigliarla nelle scelte migliori per rendere la casa veramente sua. Al termine della sua esperienza di acquisto, verrà attivato un portale dedicato per tutte le sue necessità di assistenza relative alla casa, avrà sempre un filo diretto con il costruttore per una customer experience d'eccellenza.
SPECIFICHE
RIFERIMENTO IMMOBILE
MTI-918
CONTRATTO
Vendita
TIPOLOGIA
Appartamento
PIANO
Piano terra
SUPERFICIE
75 m²
LOCALI
2 Locali, 1 Bagno
CAMERA
1
CUCINA
A vista
TERRAZZO
Presente, 90 m²
TOTALE PIANI EDIFICIO
6
ASCENSORE
Presente
DISPONIBILITA'
Libero
COSTI
PREZZO
€ 295.000
SPESE CONDOMINIALI
€ 80/mese
EFFICIENZA ENERGETICA
ANNO DI COSTRUZIONE
1958
STATO
Ottimo
RISCALDAMENTO
Autonomo
CLASSE ENERGETICA
F 127 kWh/㎡ anno


