Lazio | Roma | Parioli
via nicolò paganini, 1
Ufficio in Affitto a Roma
€ 5.000/mese
€ 5.000/mese
Locali 9
m² 199
Bagni 2
Piano 1°
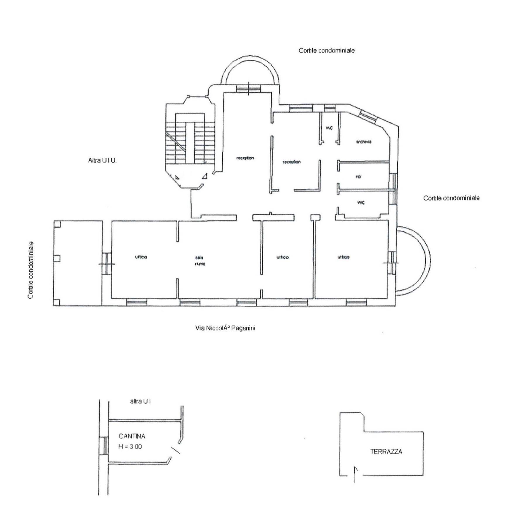
Nel prestigioso quartiere Parioli, all'interno di un elegante palazzo d'epoca, proponiamo in affitto ufficio di ampia metratura situato al primo piano.
L'immobile si apre su una grande reception, dalla quale si accede a quattro stanze, sale riunioni, archivio e ripostiglio.
La proprietà dispone di due bagni e gode di ottima luminosità.
- Completano la soluzione un terrazzo vivibile, un balcone, una cantina e un box auto, elementi di particolare valore per la zona.
- Riscaldamento autonomo
La posizione, ben servita e strategica, rende l'immobile una soluzione ideale per uffici di rappresentanza, in uno dei quartieri più richiesti di Roma.
SPECIFICHE
RIFERIMENTO IMMOBILE
MTI-981
CONTRATTO
Affitto
TIPOLOGIA
Ufficio
PIANO
1° Piano
SUPERFICIE
199 m²
LOCALI
9 Locali, 2 Bagni
TOTALE PIANI EDIFICIO
6
DISPONIBILITA'
Libero
COSTI
PREZZO
€ 5.000/mese
SPESE CONDOMINIALI
€ 420/mese
EFFICIENZA ENERGETICA
STATO
Buono
RISCALDAMENTO
Autonomo
CLASSE ENERGETICA
C 125 kWh/㎡ anno


