Lazio | Roma | Flaminio
Via Flaminia, 26
Appartamento in Vendita a Roma
€ 590.000
€ 590.000
Locali 2
m² 67
Bagni 2
Piano 1°
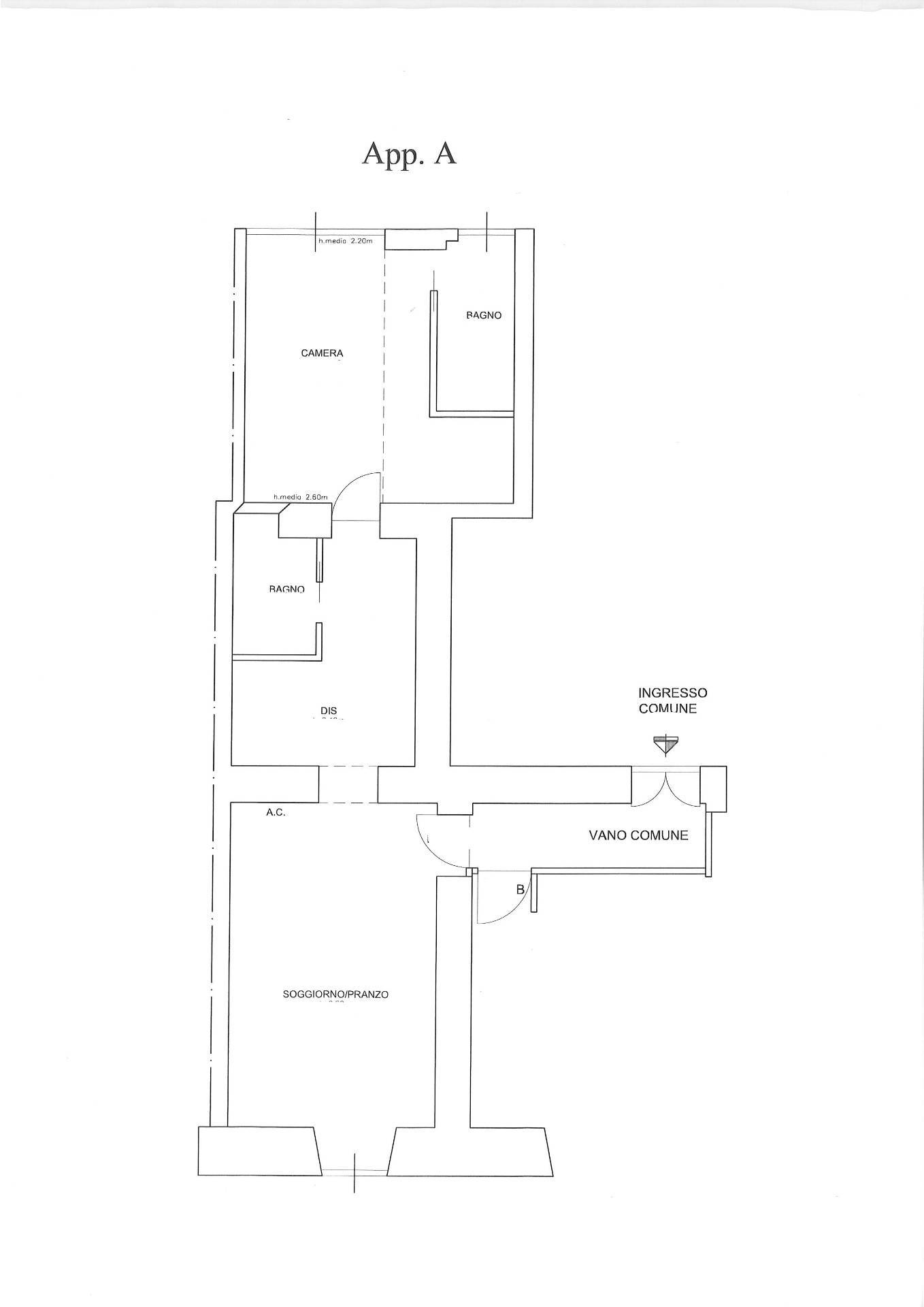
Nel cuore di Roma, a pochi passi da Piazza del Popolo, proponiamo in vendita un appartamento di 65 mq situato al primo piano di una palazzina elegante e signorile in Via Flaminia.
L'immobile è composto da soggiorno con angolo cottura, una camera da letto matrimoniale con bagno privato e un secondo bagno, con spazi ben distribuiti e un'atmosfera accogliente e raffinata. La luce naturale valorizza ogni ambiente, rendendo l'abitazione particolarmente piacevole e funzionale.
L'immobile sarà completamente ristrutturato e completato con materiali di prima scelta.
La zona
Via Flaminia rappresenta una delle location più esclusive e iconiche della Capitale, a ridosso del centro storico e immersa in un contesto di assoluto pregio. La posizione offre un perfetto equilibrio tra eleganza, servizi di alto livello e collegamenti eccellenti, con la comodità di vivere a pochi minuti da Villa Borghese, dal Tridente e dalle principali attrazioni culturali di Roma. Una scelta ideale per chi desidera una residenza di rappresentanza o un investimento di elevato valore.
SPECIFICHE
RIFERIMENTO IMMOBILE
MTI-979
CONTRATTO
Vendita
TIPOLOGIA
Appartamento
PIANO
1° Piano
SUPERFICIE
67 m²
LOCALI
2 Locali, 2 Bagni
CAMERA
1
CUCINA
A vista
TOTALE PIANI EDIFICIO
6
ASCENSORE
Presente
DISPONIBILITA'
Libero
COSTI
PREZZO
€ 590.000
SPESE CONDOMINIALI
€ 70/mese
EFFICIENZA ENERGETICA
ANNO DI COSTRUZIONE
1910
STATO
Ristrutturato
RISCALDAMENTO
Climatizzato
CLIMATIZZATORE
Autonomo, Freddo/Caldo
CLASSE ENERGETICA
C 149 kWh/㎡ anno


