Lazio | Roma | Testaccio
Via Aldo Manuzio, 99
Appartamento in Vendita a Roma
€ 365.000
€ 365.000
Locali 2
m² 52
Bagni 1
Piano 1°
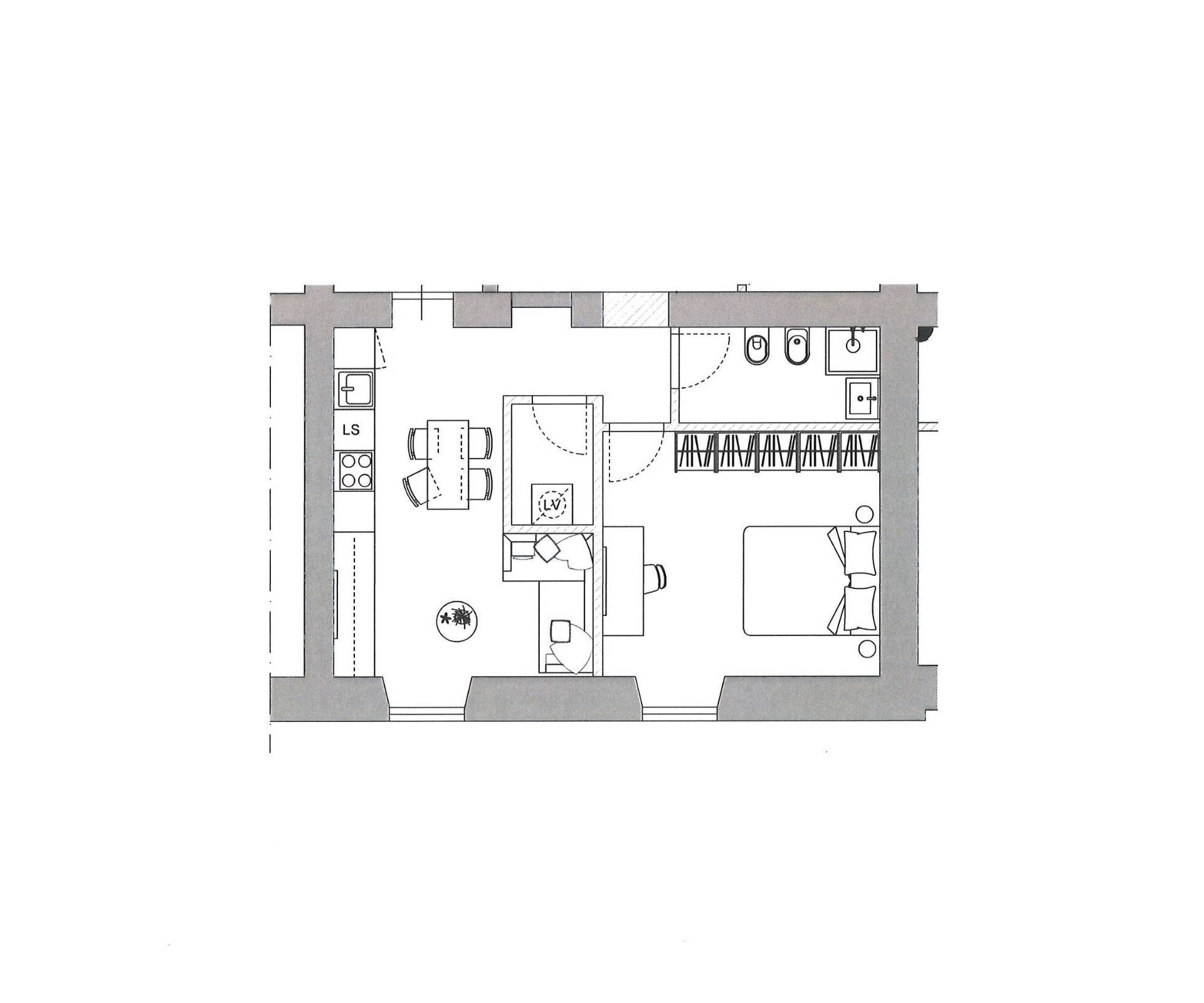
BILOCALE 52 MQ IN CORSO DI REALIZZAZIONE. CONSEGNA MAGGIO 2026
Rione Testaccio, in Via Aldo Manuzio, a pochi passi dallo storico mercato coperto, con i suoi banchi di prodotti freschi e gli stand di street food, e nelle vicinanze del Dipartimento di Architettura Uni Roma Tre, proponiamo in vendita un elegante e moderno appartamento bilocale in corso di realizzazione, posto al primo piano di un edificio del 1920. Ingresso, soggiorno con cucina a vista, disimpegno, camera da letto e bagno con cabina doccia. Esposizione con affaccio su Via Beniamino Franklin.
L'immobile sarà consegnato interamente ristrutturato e completato con materiali di prima scelta. Possibilità di personalizzare l'appartamento scegliendo i materiali tra le opzioni previste nei capitolati. Durante questo percorso l'Acquirente sarà seguito da un "Experience Designer" che potrà consigliarlo nelle scelte migliori per rendere la casa in linea con le proprie esigenze. Una volta concluso l'acquisto e consegnato l'immobile, verrà attivato un portale dedicato per tutte le necessità di assistenza relative all'appartamento, avendo così sempre un filo diretto con il Costruttore per una customer experience d'eccellenza.
SPECIFICHE
RIFERIMENTO IMMOBILE
MTI-928
CONTRATTO
Vendita
TIPOLOGIA
Appartamento
PIANO
1° Piano
SUPERFICIE
52 m²
LOCALI
2 Locali, 1 Bagno
CAMERA
1
CUCINA
A vista
TOTALE PIANI EDIFICIO
4
DISPONIBILITA'
Libero
COSTI
PREZZO
€ 365.000
SPESE CONDOMINIALI
€ 45/mese
EFFICIENZA ENERGETICA
ANNO DI COSTRUZIONE
1920
STATO
Ristrutturato
RISCALDAMENTO
Centralizzato con contabilizzatore di calore
CLASSE ENERGETICA
G 277 kWh/㎡ anno


